Omschrijving
Royale, uitgebouwde en instapklare twee-onder-een-kapwoning met o.a. voortuin, ruime oprit, multifunctionele ruimte (ca. 20 m²) met eigen voorzieningen, 16 zonnepanelen en een privacy biedende, verzorgde achtertuin op het westen. De woning is zeer rustig en kindvriendelijk gelegen, een ideale woonlocatie voor jonge gezinnen én voor mensen met een aan huis gebonden beroep. De woning is volledig geïsoleerd en heeft energielabel A.
Bouwjaar: 1997
Inhoud: ca. 516 m³
Woonoppervlakte: ca. 146 m²
Perceelsoppervlakte: 286 m²
Energielabel: A
LOCATIE EN
Omgeving
De ruim opgezette woonwijk "Hoge Neer" bevat grote waterpartijen, veel groen- en speelvoorzieningen. De wijk is gebouwd halverwege de jaren '90. Er is een grote diversiteit aan woningen aanwezig. Aan de rand van deze wijk is een breed scala aan sportactiviteiten, waaronder voetbal, honk-/softbal, korfbal en hockey. De wijk ligt dichtbij het centrum van Etten-Leur, waardoor alle voorzieningen om de hoek zijn. Het station ligt op 5 minuten fietsafstand en de KSE, een middelbare school ligt op 5 minuten lopen. De uitvalswegen liggen op 5 autominuten afstand van de woning waardoor steden als Rotterdam, Breda, Antwerpen en Roosendaal goed te bereiken zijn.
Bouwkwaliteit
Deze woning is op traditionele wijze gebouwd en goed geïsoleerd door middel van dak-, vloer- en gevelisolatie alsmede HR++ beglazing. De verdiepingsvloeren zijn van beton en de kozijnen zijn in kunststof uitgevoerd (2019) met draai/kiep ramen en diverse rolhorren. De woning wordt verwarmd en voorzien van warm water door een hoog-rendement CV-ketel (merk Remeha, 2018). Op het dak van de woning liggen 16 zonnepanelen (2019) welke gezamenlijk ca. 4000 kWh per jaar opwekken. Aan de achterzijde is de woning uitgebouwd (2005) en voorzien van een compleet nieuwe keukeninrichting in 2022. De zolder(slaap)kamer is voorzien van airconditioning (2024). De voormalige garage is in 2015 verbouwd/uitgebouwd tot multifunctionele ruimte van ca. 20 m² met eigen voorzieningen (pantry en toilet). De uitbouw is voorzien van een groen dak (sedum) wat goed is voor de natuur en het klimaat! De gehele begane grond is afgewerkt met strak gestucte wanden en plafonds (2022). De woonkamer is voorzien van een Solatube wat zorgt voor extra daglicht. De begane grond is afgewerkt met een Frans eikenhouten vloer (woonkamer) en een Belgische hardstenen vloer (hal en eetkeuken).
Tuin
Vanuit het comfort van dit heerlijke woonhuis is het gehele jaar door ook volop van de verzorgde tuin met optimale privacy te genieten. De tuin is speels ingericht met sierbestrating, diverse terrassen en veel vast groen. Achterin de tuin is een fraaie opslag in Douglashout gerealiseerd met verlichting. Verder is de tuin voorzien van diverse stopcontacten, buitenverlichting, degelijke erfafscheiding, waterkraan en een containerombouw (in Douglashout). Vanuit de tuin is tevens de stenen berging te bereiken met doorloop naar de multifunctionele ruimte. De voortuin is ingericht met veel vaste beplanting en biedt tevens plaats aan een royale oprit met parkeerplaats voor meerdere auto's.
Bijzonderheden
- Door goede isolatie gecombineerd met 16 zonnepanelen heeft de woning lage energielasten (energielabel A);
- De woning verkeert in een uitstekende staat van onderhoud;
- Kunststof dakkapel geplaatst achterzijde in 2022;
- Badkamer en toilet begane grond volledig vernieuwd in 2022;
- Het bitumen dak van de multifunctionele ruimte is vernieuwd in 2025;
- Multifunctionele woning met kantoor/werkruimte (toegankelijk vanuit oprit) wat deze woning uitermate geschikt maakt voor de combinatie wonen/werken.
Indeling
Begane grond
Entree met toegang tot de hal met trapopgang naar de eerste verdieping, de vernieuwde meterkast en de toiletruimte voorzien van een hangend closet met fonteintje. De royale woonkamer met sfeervolle open haard heeft door de grote raampartijen en de Solatube veel natuurlijk lichtinval. De moderne eetkeuken (2022) met lichtkoepel, bar en keukenwand is voorzien van een keukenblok hoekopstelling met composiet aanrechtblad en diverse onderkasten. Aan inbouwapparatuur is aanwezig: Bora inductie kookplaat met geïntegreerde afzuiging, koel/vries combinatie, vaatwasser, Quooker, magnetron en heteluchtoven. De raampartij is uitgevoerd met een handbediend zonnescreen en middels openslaande deuren is de tuin bereikbaar.
Eerste verdieping
Overloop met toegang tot 3 slaapkamers, de badkamer en de trapopgang naar de tweede verdieping. De gehele verdieping (m.u.v. badkamer) is afgewerkt met een doorlopende laminaatvloer. Alle ramen op de eerste en tweede verdieping zijn voorzien van magnetische raambekleding.- Slaapkamer 1 (ca. 4.41m x 2.79m) is gelegen aan de voorzijde van de woning;
- Slaapkamer 2 (ca. 4.27m x 2.79m) is gelegen aan de achterzijde en voorzien van een dakkapel met 2x draai/kiep ramen;
- Slaapkamer 3 (ca. 3.37m x 2.75m) is gelegen aan de voorzijde van de woning;
- Moderne, geheel betegelde badkamer (2022), voorzien van een inloopdouche met regen- en handdouche, tweede toilet, wastafelmeubel met dubbele kraan, ligbad met handdouche, wandkast en designradiator. De badkamer is voorzien van een dakkapel met draai/kiep raam. Achter de schuine kant is er nog extra bergruimte aanwezig.
Tweede verdieping
Ruime overloop met toegang tot de stookruimte evenals de wasruimte. Tevens bevinden zich hier de omvormer van de zonnepanelen en de unit mechanische ventilatie.
- Slaapkamer 4 (ca. 4.97m x 3.04m) royaal en voorzien van een vaste kastenwand, airconditioning en een draai/kiep raam.
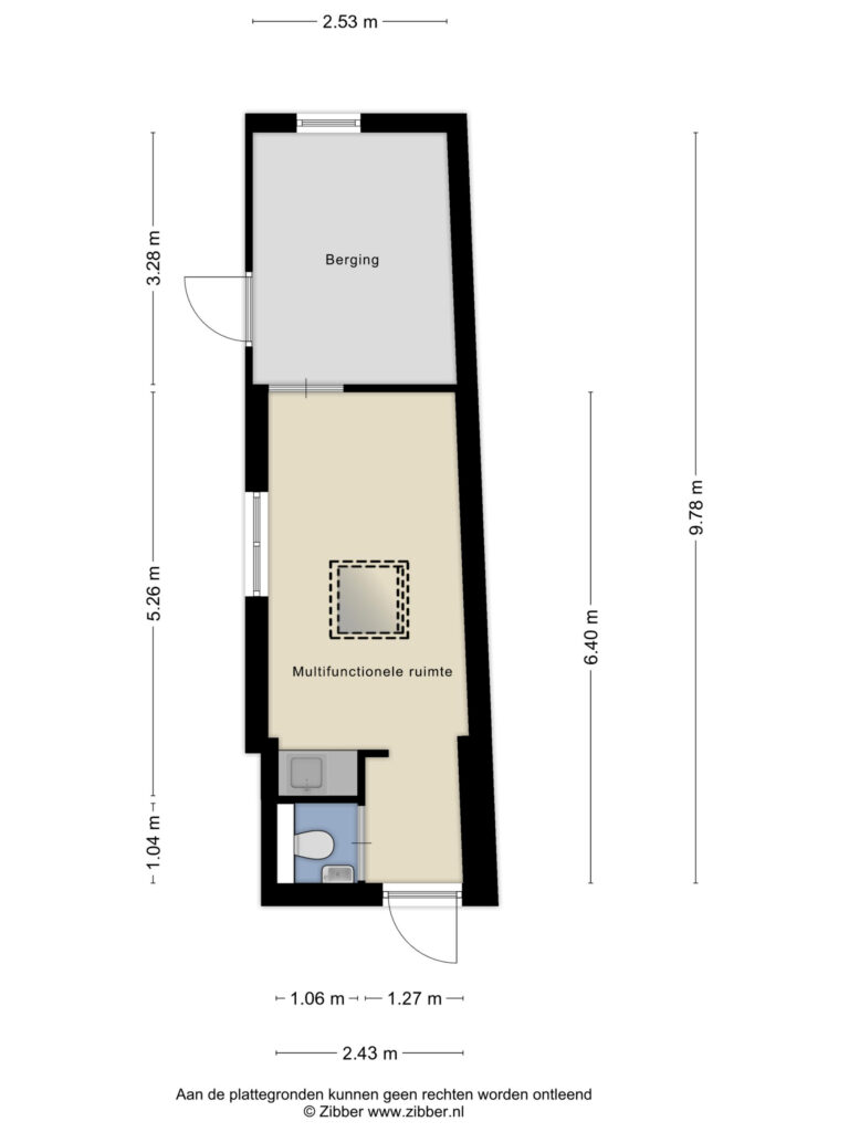
Multifunctionele ruimte
Geïsoleerde, multifunctionele ruimte met apart toilet met fonteintje, ideaal voor bijvoorbeeld een praktijk of kantoor aan huis. Deze ruimte is geïsoleerd en beschikt over een eigen voordeur (vanuit oprit) met entree. De multifunctionele ruimte is voorzien van een pantry, inbouwpots, 2x kunststof draai/kiep raam evenals een lichtkoepel. Via een loopdeur is er doorgang naar de berging.
Kenmerken
Overdracht
- Status
- Verkocht
- Aanvaarding
- In overleg
- Vraagprijs
- € 590.000,- k.k.
Bouw
- Soort
- Eengezinswoning
- Bouwjaar
- 1997
- Isolatievormen
- Dakisolatie, Muurisolatie, Vloerisolatie, Dubbelglas, Volledig geïsoleerd
Indeling
- Gebruiksoppervlakte woonfunctie
- 150 m2
- Perceel oppervlakte
- 286 m2
- Aantal kamers
- 6
- Aantal verdiepingen
- 3
Energie
- Soorten verwarming
- CV ketel
- Soorten warm water
- CV ketel
Buitenruimte
- Tuintypen
- Achtertuin, Voortuin
- Ligging
- Aan rustige weg, In woonwijk
Parkeergelegenheid
- Soorten
- Geen garage

